Tủ bếp acrylic tông đỏ nổi bật trong không gian bếp nhà anh Thiều được Xuyên Việt thiết kế sản xuất thi công và lắp đặt trọn gói với chất liệu nhựa PVC không mối mọt, chống ẩm mốc do môi trường. Bên cạnh đó, đặc tính nhựa đặc PVC giúp việc đóng mở cửa tủ êm, không xuất hiện tình trạng cong vênh hay nứt nẻ theo thời gian. Mặt cánh của tủ bếp acrylic trơn, phẳng chống trầy xước tốt, đảm bảo thẩm mỹ lâu dài.
Với bề mặt cánh tủ acrylic sáng bóng như gương, không bám bẩn và dễ lau chùi đây chắc chắn là những ưu điểm cần thiết khi khách hàng muốn sở hữu bộ tủ bếp acrylic cho căn nhà của mình.
Khảo sát không gian bếp nhà anh Thiều trước khi lắp tủ bếp acrylic
Là một người yêu thích những gam màu nổi bật và sở hữu không gian bếp khá hẹp nên anh Thiều muốn sử dụng tông màu đỏ cho bộ tủ bếp của gia đình mình. Nhất là với không gian phòng bếp nhỏ, hẹp như nhà anh thì màu đỏ sẽ tạo cảm giác rộng rãi hơn. Hơn hết, với bề mặt tủ bếp sáng bóng gương giúp việc vệ sinh tủ bếp trở nên đơn giản hơn bao giờ hết.
Ngoài ra anh Thiều hiểu rằng tông đỏ sẽ đem lại may mắn tài lộc, sự ấm áp, ấm cúng cho anh và gia đình mình. Còn gì tuyệt vời hơn khi một bộ tủ bếp vừa đa năng chứa công năng sử dụng thông minh và hợp mệnh cho anh thì không có sự lựa chọn nào đúng đắn hơn.
Sau khi KTS Xuyên Việt qua nhà anh đo đạc và khảo sát thì đưa ra những phương án sau đây:
+ Sở hữu không gian bếp khá hẹp nên tủ bếp kiểu dáng chữ L sẽ là lựa chọn hoàn hảo nhất cho căn nhà của anh Thiều.
+ Với màu đỏ anh Thiều chọn thì KTS Xuyên Việt sử dụng cách phối tủ trên phủ acrylic tông trắng và tủ dưới phủ acrylic tông đỏ sẽ làm giảm sắc nổi bật của màu đỏ, tạo cảm giác bộ tủ hoàn hảo hơn mà không bị quá chói.
+ Bên cạnh đó hệ tủ rượu có cánh kính cùng đèn led bên trong đặt cùng với hệ tủ bếp sẽ tạo điểm nhấn cho bộ tủ thêm đầy sức hút hơn.
+ Ngoài ra bên trong các khoang tủ Xuyên Việt có sử dụng phụ kiện thông minh giúp cho việc nấu nướng của gia đình anh được dễ dàng.
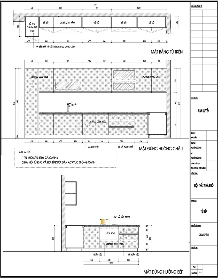
Phương án thi công bộ tủ bếp acrylic tông đỏ nhà anh Thiều

Hình ảnh 3D bộ tủ bếp acrylic tông đỏ nổi bật trong không gian bếp nhà anh Thiều
- Màu sắc: AC33 – AC08 ( Trắng – đỏ tươi)
- Kiểu dáng: Tủ chữ L
- Chất liệu: Tủ bếp được làm bằng nhựa PVC đặc dày 18mm loại 1, với kết cấu tiêu chuẩn chỉ có tại Xuyên Việt: vách, khung thùng đều là nhựa 18mm, phần chịu lực 36mm, riêng hậu nhựa 9mm. Phần này rất quan trọng để đảm bảo độ bền trong suốt quá trình sử dụng, độ sắc nét và khít của các cánh trách vênh hoặc hở. Với ưu điểm: chống nước, chống mối mọt, không nứt xé, dễ vệ sinh, sạch sẽ, chống cháy… là giải pháp tiên tiến công nghệ cho giải pháp tối ưu nhất cho chất liệu nội thất gia đình. Duy nhất tại Xuyên Việt bảo hành lên tới 5 năm, bảo trì trọn đời, cam kết bền đẹp ít nhất 20 năm.
- Cánh tủ: Nhựa PVC dày 18mm phủ acrylic gam màu trắng và đỏ có bề mặt sáng bóng , không bám bẩn, dễ vệ sinh lau chùi. Bền màu theo thời gian, không lo ố màu, xỉn màu, bong tróc trong quá trình sử dụng.
- Tủ trên: có chiều dài 4210 , sâu 350 và cao 700mm. Tủ trên với gam màu trắng đối lập với màu tủ bên dưới, bên trong các khoang tủ được chia đợt giúp cho gia đình anh Thiều thoải mái sử dụng.
- Tủ dưới: có chiều dài 4400, sâu 580, cao 795mm chưa gồm mặt đá.Tủ dưới với tông đỏ hoàn toàn có chia các khoang công năng sử dụng thông minh giúp cho việc nấu nướng được thuận tiện hơn.
- Tủ rượu: có chiều dài 450 , sâu 350, cao 1300mm , Tủ cánh kinh bên trong chia đợt kính giúp anh Thiều có thể trang trí hay bày biện những chai rượu được gọn gàng hơn, thuận tiện hơn mỗi khi có bạn đến chơi nhà.
- Kính ốp tường: 8ly thường với gam màu vàng chanh nổi bật, bề mặt dễ lau chùi kể cá những vết dầu mỡ bám bẩn đáng ghét.
- Mặt đá: tự nhiên với tông màu xanh ngọc bích được thiết kế lend trong và ngoài dày, thẩm mỹ, chống đọng nước, chịu lực, mặt mịn bóng, bền, dễ lau chùi.
Công năng sử dụng thông minh trong bộ tủ bếp acrylic nhà anh Thiều

Bộ tủ bếp acrylic tông đỏ tạo cảm giác không gian bếp nhà anh Thiều bớt hẹp và rộng rãi hơn
Khu vực chậu rửa: Bao gồm chậu rửa bát được đặt đúng vị trí tiện lợi nhất cho hoạt động nấu nướng. Phía trên chậu rửa bát chính là giá bát, tiện sử dụng, tránh nước rơi rớt ra sàn nhà.
Khu vực nấu nướng: Khu vực quan trọng nhất của căn bếp gồm có bếp từ và máy hút mùi nằm phía trên. Giá bát, xoong nồi cũng được thiết kế sát vị trí bếp nấu thuận tiện nhất cho hoạt động nấu nướng của gia đình anh Thiều.
Khu vực lưu trữ đồ dùng: thường để đồ khô, vật dụng ít sử dụng trong các khoang tủ trống của 2 hệ tủ trên dưới..
Khu vực tủ rượu: trang trí hay dự trữ rượu một cách gọn gàng và bắt mắt nhất là mỗi khi có khách đến chơi nhà thì đây là dịp mà anh Thiều có thể sử dụng để giới thiệu tới bạn bè.

Bộ tủ bếp acrylic tông đỏ sau khi lắp xong khiến anh Thiều vô cùng hài lòng
Cách thức liên hệ đặt đóng bộ tủ bếp acrylic tại Xuyên Việt
Nội thất Xuyên Việt chúng tôi luôn hướng tới dòng sản phẩm tủ bếp cao cấp với công nghệ hiện đại nhất hiện nay. Mục tiêu của đơn vị chúng tôi là cải tiến chất lượng sản phẩm ngày càng tốt hơn với giá thành hợp lý nhất, không cạnh tranh giá rẻ và giảm chất lượng sản phẩm.
1. Nếu quý khách quan tâm hay có nhu cầu đặt đóng tủ bếp acrylic cho gia đình mình xin hãy liên hệ qua hotline.
=>Để được tư vấn, hỗ trợ nhanh nhất về sản phẩm, hay mẫu tủ bếp phù hợp với không gian gia đình mình.
2. Quý khách có thể ADD zalo số HOTLINE để được nhân viên bán hàng tư vấn và báo giá theo kích thước bộ tủ bếp cùng với những phương án đưa ra phù hợp với tài chính của quý khách.
3. Quý khách có thể qua một trong 4 showroom gần nơi mình ở nhất để đặt hàng và xem các mẫu tủ bếp được bày bán sẵn tại cửa hàng để quý khách hàng có những đánh giá khách quan hơn sau khi xem các mẫu sản phẩm của Xuyên Việt.











