Mẫu tủ bếp nhựa pvc cao cấp dán Acrylic cho anh Duân – Hòn Gai, Quảng Ninh: được thiết kế kiểu chữ L có bàn đảo tiện dụng.

Căn bếp rộng rãi mới xây nổi bật tủ bếp nhựa Acrylic cao cấp nhà anh Duân
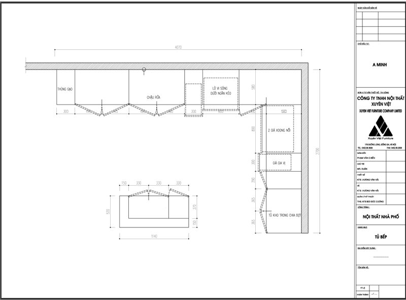
Thiết kế công năng tủ bếp nhựa Acrylic nhà anh Duân
– Tủ bếp trên: bố trí với ngăn để bát đĩa hàng ngày thẳng xuống khoang chậu kết hợp cánh kính và các khoang còn lại chia đợt để đồ.
– Tủ bếp dưới: thùng gạo đặt ngoài cùng, bên phải chậu rửa có giá để dao thớt và ngăn ké lò vi sóng. Dưới bếp 2 ngăn để xoong nồi, bên phải giá gia vị.
– Tủ cột: rộng rãi phần tủ trên chia ngăn để đồ, tủ dưới có ngăn kéo.

Bản vẽ cách bố trí công năng tủ bếp theo phong thủy của gia đình anh Duân

Tủ bếp có đầy đủ công năng, màu sắc sáng bóng của Acrylic trên vật liệu nhựa cao cấp

Bàn đảo được thiết kế thoáng và kiểu cách với bề mặt Acrylic bóng gương
Đặc điểm tủ bếp nhựa Acrylic nhà anh Duân
– Toàn bộ tủ bếp sử dụng tấm nhựa PVC FOAM cao cấp đặc và dày tiêu chuẩn 18mm siêu chịu nước, không lo ẩm mốc, không bị mối mọt, không nứt xé… tuổi thọ rất bền.
– Lớp phủ bền mặt: Dán Acrylic 2 màu đỏ và trắng.
– Kính ốp bếp: kính 8 ly màu xanh ngọc nhẹ nhàng , giúp dễ dàng vệ sinh dầu mỡ.
– Mặt làm bàn bếp: đá tự nhiên kim sa trung.
Thiết bị và phụ kiện dùng trong tủ bếp:
+ Hút mùi k700 âm tủ; Bếp từ đôi ; lò vi sóng; Chậu inox 304 Hàn Quốc 2 hố, Vòi nóng lạnh;
+ Giá bát di động k800; 01 gia vị k300; thùng gạo gương; 02 giá xoong nồi k800; 0 1 dao thớt k300;
+ Bản lề inox giảm chấn; Ray giảm chấn; Đèn cảm ứng lắp gầm tủ trên;
Nội Thất Xuyên Việt hơn 20 năm chuyên thiết kế và thi công các sản phẩm tủ bếp nhựa pvc cao cấp chúng tôi luôn tự hào đem đến các giải pháp tối ưu và hữu dụng nhất cho ngôi nhà của Quý khách.






