Căn bếp nhỏ trở nên hiện đại và tiện ích gọn gàng với phương án tủ bếp nhựa chịu nước cho nhà anh Kiên – Hà Đông, Hà Nội.

Hiện trạng căn bếp của nhà anh Kiên
– Căn bếp nhỏ đã phá dỡ toàn bộ tủ bếp gỗ bị mục, ẩm mốc.
– Căn bếp được cơ nới rộng kết hợp để bàn ăn cho gia đình.
– Công năng sử dụng đơn giản và gọn gàng theo nhu cầu thực tế của gia đình.

Sau khi Kiến trúc sư Xuyên Việt khảo sát đầy đủ hiện trang và nhu cầu thực tế nhà anh Kiên, đã lên phương án dòng tủ bếp nhựa acrylic chịu nước tốt với chi phí rất hợp lý cho gia đình.
Phương án thiết kế tủ bếp của nhà anh Kiên như sau
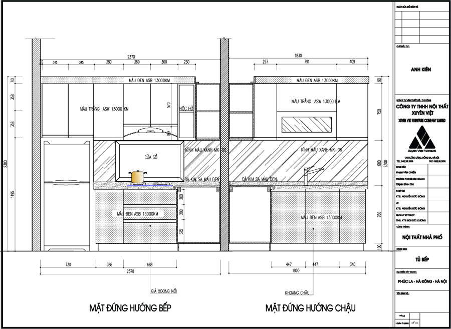
– Tủ bếp chữ L có chiều dài 2.37m x 1.8m
– Toàn bộ tủ bếp sử dụng tấm nhựa pvc số 1 Việt Nam, với cánh phẳng dày 18mm. Với những ưu điểm tuyệt vời: chịu nước rất tốt, không lo bị ẩm mốc hay mối mọt, không nứt xé, không cháy…. nên có tuổi thọ rất bền.
– Bề mặt cánh dày 18mm, phủ laminate phối 2 màu đen mã ASB1300KM – trắng mã ASW13000KM bằng máy dán hiện đại bền đẹp, chống bong tróc, phồng rộp.
– Mặt bàn bếp sử dụng đá tự nhiên kim sa đen cùng tông màu tủ bếp dưới.
– Kính ốp bếp màu xanh nổi bật, giúp vệ sinh dầu mỡ dễ dàng hơn, chống ẩm mốc tường.
– Phụ kiện các giá bát 3 tầng inox 304 gia công, giá xoong nồi hãng BAT

Công năng tủ bếp nhựa mới cho bếp nhỏ nhà anh Kiên
– Giá để xoong nồi dạng ngăn kéo đặt dưới bếp từ tiện sử dụng.
– Giá bát đĩa sử dụng tay nâng Blum giá bằng chất liệu inox 304 gia công 3 tầng thoải mái để.
– Các ngăn còn tủ còn bên trong chia đợt ngang cho gia đình sử dụng

Nội Thất Xuyên Việt gần 20 năm chuyên thiết kế và thi công các sản phẩm tủ bếp nhựa cao cấp chúng tôi luôn tự hào đem đến các giải pháp tối ưu và hữu dụng nhất cho ngôi nhà của Quý khách.







