Mẫu tủ bếp chữ L nhà anh Thọ – Vũ Trọng Phụng, Hà Nội: có không gian bếp nhỏ, ít sáng nên sử dụng tông màu sáng thêm điểm đường line màu đỏ đun tạo điểm nhấn cho tủ bếp
Mã sản phẩm : LS210-160

Mẫu tủ bếp chữ L đơn giản và đầy đủ công năng sử dụng của gia đình anh Thọ – Tủ bếp hà nội
Công năng thiết kế tủ bếp nhà anh Thọ
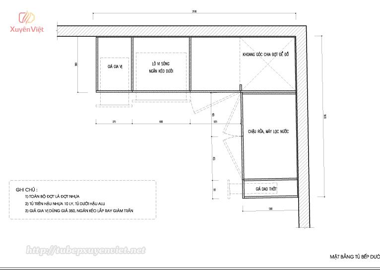
– Tủ bếp trên: Giá bát cố định 2 ngăn thẳng chậu rửa có tay nâng Blum, và các khoang chia đợt nhựa đa năng.
– Tủ bếp dưới: Dưới bếp từ có ngăn kéo lò vi sóng, cạnh phải có giá để gia vị. Góc trong chữ L chia đợt để xoong nồi. Dưới chậu rửa có máy lọc nước và thùng rác, cạnh phải có giá để dao thớt.


Tủ bếp hiện đại kiểu chữ L đơn giản đảm bảo đầy đủ nhu cầu sử dụng gia đình
Đặc điểm nổi bật tủ bếp đẹp nhà anh Thọ
– Sử dụng tấm nhựa PVC FOAM cao cấp cánh phẳng dày 18mm, khung đỡ 36mm có đặc tính nổi bật như: không ngấm nước, mối mọt, nứt xé, ẩm mốc,không cháy, tuổi thọ rất bền… khắc phục hoàn toàn nhược điểm vật liệu truyền thống.
– Lớp phủ bền mặt: Sơn men bóng ôtô line 2 màu đỏ – trắng có ánh kim với ưu điểm nổi bật: chống xước rất tốt, lớp sơn chi tiết cũng góc cạnh sản phẩm cứng như bề mặt, bề mặt bóng rất phù hợp không gian bếp hiện đại. Tìm hiểu thêm tại: Tủ bếp sơn phủ men bóng ôtô – Ưu và nhược điểm
– Kính Ốp lưng bếp: 8ly sơn ánh kim màu xanh ngọc nổi bật, dễ dàng lau chùi vết dầu mỡ và bẩn trong quá trình nấu nướng, kết hợp hệ đèn led sẽ làm nổi bật phòng bếp nhà bạn
– Đá làm mặt bếp: sử dụng đá nhân tạo cao cấp thạch anh màu trắng HXS-09121 sang trọng với ưu điểm rất cứng, bề mặt bóng, không mài mòn, trầy xước, độc hại linh hoạt trong cấu trúc dễ uốn cong tạo nên gờ ngăn nước, làm âm chậu rửa… Đặc biệt với đường bo viền và ghép nhìn như không vết nối.
– Thiết bị và phụ kiện: bố trí thông minh thuận tiện cho các công năng cho không gian bếp hiện đại theo nhu cầu gia đình.
+ Hút mùi ngang âm mặt Malloca H214.7; Chậu 2 hố inox 304 Malloca 1024;
+ 01 Dao thớt; 01 giá gia vị; 01 giá bát cố định và bộ tay nâng Blum tủ trên; Thùng rác tròn 14l;
+ Ray giảm chấn; Bản lề giảm chấn hãng BAT; Nhôm dán đáy tủ;
Nội Thất Xuyên Việt hơn 20 năm chuyên thiết kế và thi công các sản phẩm tủ bếp cao cấp chúng tôi luôn tự hào đem đến các giải pháp tối ưu và hữu dụng nhất cho ngôi nhà của Quý khách.
Tủ bếp Xuyên Việt rất hân hạnh phục vụ quý khách!






