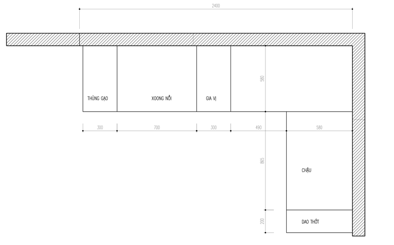
Tủ Bếp Sơn Đỏ Đun Nhỏ Gọn – LS240-170

Mã: LS240-170 Danh mục: ,
Miền Nam
Miền Nam 093.669.0486