Mẫu tủ bếp nhựa với thiết kế kiểu chữ L hiện đại đơn giản và dễ sử dụng cho căn bếp rộng rãi mới xây xong nhà chú Thành – Ngô Gia Tự, Hà Nội.
Mã sản phẩm : LS290-180
Mẫu tủ bếp nhựa chữ L nhà chú Thành với giải pháp:
- – Cốt vật liệu hoàn toàn bằng tấm nhựa pvc số 1 Việt Nam với độ dày tiêu chuẩn 18mm phủ Acrylic 2 màu nâu – trắng.
- – Mặt đá nhân tạo thạch anh cao cấp màu vàng với kỹ thuật ghép “không vết nối”, đặc biệt làm âm chậu rất đẹp.
- – Kính ốp bếp màu xanh ngọc nhẹ nhàng tôn lên tông màu đỏ trắng tủ bếp, giúp ngăn các vết bẩn không bám lên tường, vệ sinh lau chùi rất dễ dàng.

Tủ bếp nhựa hiện đại chữ L chú Thành

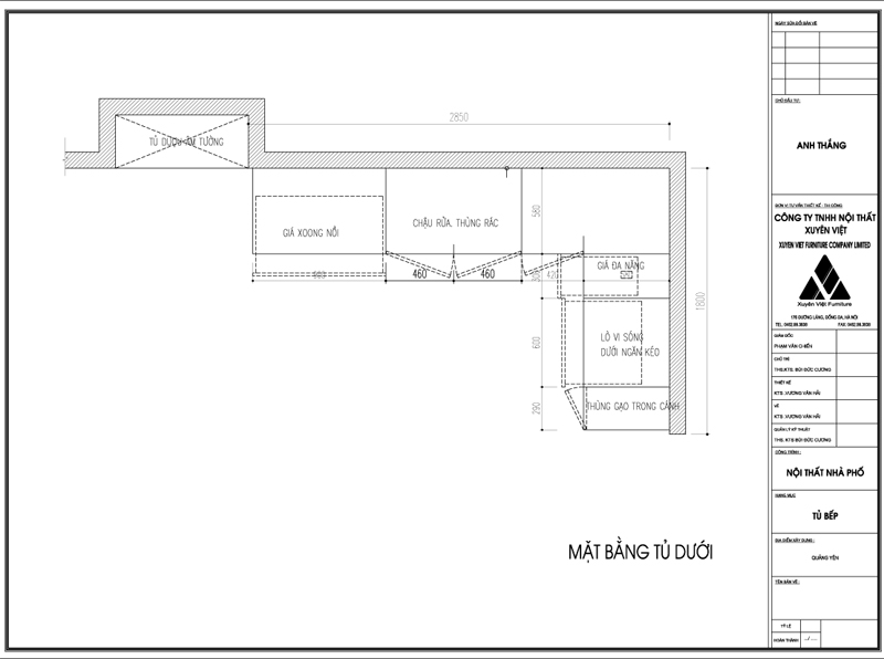
Các công năng bố trí thông minh đơn giản và thoái mái cho chú Thành sử dụng
Thiết kế công năng trong tủ bếp nhựa hiện đại nhà chú Thành như sau:
- – Tủ bếp bên chậu rửa : phía trên giá bát đĩa với tay nâng Blum, các ngăn còn lại chia đợt để đồ.
- – Tủ bếp bên bếp nấu: Dưới bếp có ngăn kéo lò vi sóng, bên phải giá xoong nồi và dao thớt tiện dụng.

Thiết bị và phụ kiện trong tủ bếp nhựa hiện đại nhà chú Thành
+ Bếp từ đôi; Hút mùi âm tủ k700; Lò vi sóng ; Chậu đôi inox, Vòi nóng lạnh;
+ 01 giá bát đĩa k800mm; 01 Giá xoong nồi k800; Giá dao thớt gia vị đa năng k350;
+ Bộ tay nâng Blum; Bản lề inox giảm chấn;Ray giảm chấn; Bộ đèn cám ứng dưới gầm khoang bát.
Nội Thất Xuyên Việt hơn 20 năm chuyên thiết kế và thi công các sản phẩm tủ bếp nhựa cao cấp chúng tôi luôn tự hào đem đến các giải pháp tối ưu và hữu dụng nhất cho ngôi nhà của Quý khách.






