Sau khi tham khảo và tìm hiểu ở nhiều đơn vị, chị Hạnh nhận thấy vật liệu nhựa pvc rất đáng để đầu tư, chất liệu nhựa hơn hẳn so với các loại MDF và gỗ mà trước đây chị sử dụng. Vì vậy, chị đã liên hệ ngay Hotline để được tư vấn chi tiết và lên thiết kế theo yêu cầu của chị.
Cùng Tủ bếp nhựa Xuyên Việt tham khảo mẫu tủ bếp chữ L với thiết kế công năng tiện dung cho nhà chị Hạnh – Long An để có thêm ý tưởng thiết kế cho không gian bếp nhà bạn nhé!
Tủ bếp chữ L hiện đại nhà chị Hạnh – Long An
– Kiểu dáng bếp chữ L rất được ưa chuộng và linh hoạt nhất hiện nay vì có thể khai thác tối đa diện tích bếp, tủ chạy dọc theo 2 bức tường tạo thành góc vuông, tân dụng góc chết của căn phòng.
– Tùy theo nhu cầu của mỗi gia đình, bạn có thể bố trí tủ bếp chữ L kết hợp với tủ rượu, tủ trang trí như nhà chị Hạnh, hoặc bạn có thể bố trí quầy bar hoặc bàn đảo bếp để khai thác tối đa không gian bếp.
– Với kinh nghiệm hơn 20 năm trong lĩnh vực thiết kế nội thất tủ bếp, chắc chắn sẽ có vô vàng kiểu dáng và thiết kế hiện đại để bạn lựa chọn, công năng bố trí có thể đáp ứng được nhu cầu sinh hoạt cho mọi gia đình.
– Tủ cánh phẳng dễ dàng vệ sinh lau chùi, bề mặt tấm nhựa nhẵn bóng, không bị cong vênh, chống mối mọt và chống cháy. Tấm nhựa pvc đặc loại 1 có mật độ là 0,56 gam/cm3, tương ứng với 32kg trên tấm nhựa dày 18 ly. Đảm bảo chịu lực, liên kết vít chắc chắn.

Mẫu tủ bếp chữ L bằng nhựa nhà chị Hạnh – Long An
Thông số kỹ thuật của hệ tủ bếp nhựa tone trắng đen nhà chị Hạnh
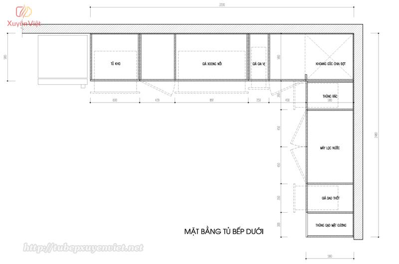
- Tủ dưới: D3990 x S580x C810 (mm). Hệ tủ dưới có hình dáng chữ L được chia làm các khoang lớn tiện dụng chứa các phụ kiện thông minh như: giá gia vị dao thớt, giá xoong nồi, bát đĩa tủ dưới và đồ dùng trong bếp khác. Bố trí bếp, chậu vòi ở 2 hướng khác nhau, giúp dễ dàng di chuyển hơn khi nấu nướng, tối ưu cho người sử dụng.
- Tủ trên: D3690 x S350 x C755 (mm). Tủ bếp trên là một hệ chữ L song song với hệ tủ bếp dưới. Bố trí khoang chứa giá bát di động được thiết kế cánh kính làm cho hệ bếp thoáng đãng và có chiều sâu hơn; kết hợp với tay nâng Blum hiện đại. Các khoang tủ khác được chia các ngăn bằng kính cường lực giúp gia chủ để được nhiều đồ dùng hơn.
- Tủ rượu + tủ trang trí: D850x S580 x C2260 (mm). Là một trong những thiết kế được nhiều người sử dụng về độ thẩm mỹ cũng như tiện lợi của nó. Tủ rượu thiết kế cánh kính hiện đại, giúp “show” được những chai rượu hảo hạng bên trong. Tủ trang trí không cánh, giúp bạn trang trí được nhiều đồ dùng hơn.
- Mặt đá: D3990 x S580 (mm) đá bếp thuộc loại đá đen kim sa trung, một trong những lựa chọn về màu sắc được gợi ý bởi nhiều tư vấn thiết kế nhà ở thể hiện nét đẹp nhẹ nhàng, trẻ trung, đặc biệt là dễ dàng vệ sinh sáng bóng. Bề mặt được xử lý chống ố, chống thấm, yên tâm chặt băm mà không lo vỡ đá.
- Kính bếp màu xanh ngọc kếp hợp với hệ đèn led vàng làm bộ tủ trở nên hài hòa hơn.
- Đặc điểm: hệ tủ bếp tone trắng đen nhà chị Hạnh được phủ sơn men bóng oto ánh kim, tủ có độ bóng vừa phải, mang vẻ đẹp chân thực, đẳng cấp. Tone màu trắng đen là tone màu sử dụng phổ biến trong thiết kế nội thất, không sợ lỗi thời, mang vẻ đẹp dài lâu.

Hệ tủ bếp với tone trắng đen hiện đại nhà chị Hạnh – Long An
Đặc điểm nổi bật của bộ tủ bếp nhựa hiện đại nhà chị Hạnh
– Tủ bếp bằng nhựa nhà chị Hạnh làm từ 100% sử dụng tấm nhựa pvc loại 1 Việt Nam, tuyệt đối không mối mọt, không ngấm nước, chống cháy… tuổi thọ rất bền, khắc phục hoàn toàn nhược điểm của vật liệu truyền thống nên được các gia đình yêu thích nhất hiện nay.
– Kết cấu tiêu chuẩn chỉ có tại Xuyên Việt (không có đơn vị khác):
- Khung thùng vách tủ đều nhựa dày đủ 18mm.
- Khung chịu lực nhựa dày 36mm. (Đơn vị khác không có)
- Hậu tủ nhựa 9mm rất chắc chắn. (Đơn vị khác tấm Aluminium mỏng).
- Toàn bộ trong thùng sơn màu trắng (Đơn vị khác để cốt thô)
=> Đảm bảo độ chịu lực lâu dài. Bảo hành lên tới 5 năm,bảo trì trọn đời, cam kết bền đẹp ít nhất 20 năm.
Video trải nghiệm tủ bếp nhựa sơn men bóng oto hiện đại tại Xuyên Việt
Liên hệ để đặt đóng bộ tủ bếp nhựa đẹp tại Xuyên Việt
1. Nếu quý khách quan tâm hay có nhu cầu đặt đóng tủ bếp nhựa cho gia đình mình xin hãy liên hệ qua hotline
==>Để được tư vấn, hỗ trợ nhanh nhất về sản phẩm, hay mẫu tủ bếp hiện đại phù hợp với không gian gia đình mình.
2. Quý khách có thể ADD zalo số HOTLINE để được nhân viên bán hàng tư vấn và báo giá theo kích thước bộ tủ bếp bằng nhựa cùng với những phương án đưa ra phù hợp với tài chính của quý khách.
3. Quý khách có thể qua một trong các showroom gần nơi mình ở nhất để đặt hàng và xem các mẫu tủ bếp bằng nhựa được bày mẫu tại cửa hàng để quý khách hàng có những đánh giá khách quan hơn sau khi xem các mẫu sản phẩm của Xuyên Việt.
Xuyên Việt xin kính chúc quý khách hàng lựa chọn được mẫu tủ bếp nhựa ưng ý nhất cho gia đình mình!







