Căn bếp hiện đại sau khi hoàn thiện mẫu tủ bếp đẹp chữ L với tủ trên cao sát trần màu đỏ đun – trắng cho nhà anh Hòa – Nam Hải, Hải Phòng.

Tủ bếp đẹp chữ l nhà anh Hòa
Thương hiệu tủ bếp nhựa Xuyên Việt đã rất nổi tiếng với sản phẩm chất lượng cao cấp và rất nhiều phong cách khác nhau cho hàng vạn gia đình không chỉ Hải Phòng mà trên toàn quốc. Và gia đình anh Hòa tìm hiểu và lựa chọn đến Xuyên Việt đặt làm tủ bếp. Dưới đây là phương án tủ bếp gia đình anh Hòa sau khi tư vấn và khảo sát thực tế:
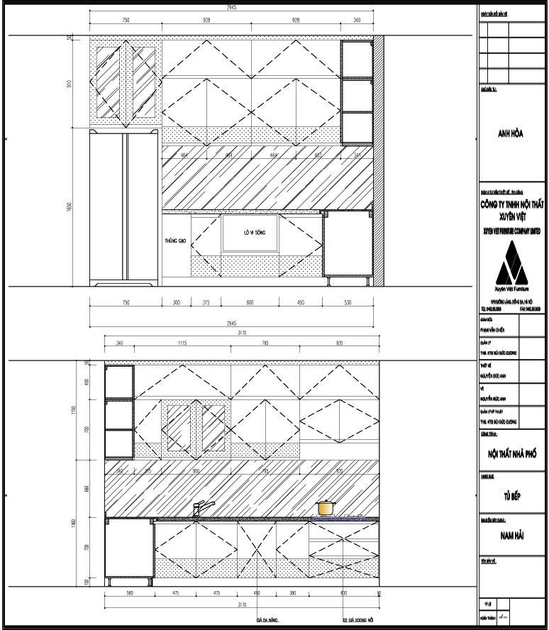
– Tủ bếp kiểu chữ L có phong cách hiện đại với kích thước 3.17m x 2.945m
– Có tủ bếp trên cao sát trần để thêm ngăn lưu trữ đồ ít dùng.
– Cốt vật liệu hoàn toàn bằng tấm nhựa pvc số 1 Việt Nam với độ dày tiêu chuẩn 18mm, cánh soi giả gỗ cao cấp với bề mặt phủ sơn men bóng ôt ô cao cấp màu đổ đun – trắng. Tìm hiểu: Tại sao giá tủ bếp nhựa pvc trên thị trường lại khác nhau?
– Mặt đá tự nhiên màu đen kim sa trung rất sang trọng.
– Kính ốp bếp màu xanh nước biển rất hiện đại , vệ sinh lau chùi rất dễ dàng.

Mẫu tủ bếp đẹp có đầy đủ công năng cao cấp
Thiết kế công năng trong tủ bếp nhà anh Hòa như sau
- – Tủ bên bếp nấu: Phía trên tủ ạnh có tủ để rượu, bên trái tủ bếp có thùng gạo mặt gương khoang 300m,Dưới bếp có ngăn lò vi sóng, các phần tủ còn lại để đồ theo công năng của mình.
- – Tủ bên chậu rửa: Bên trái chậu rửa có giá dao thớt gia vị đang năng khoang 400mm, tiếp có ngăn kéo xoong nồi khoang 900mm. phía trên chậu rửa có khoang bát đĩa cánh mở ngăn.

Bố trí công năng bên trong tủ bếp theo nhu cầu nhà anh Hòa
Nội Thất Xuyên Việt hơn 20 năm chuyên thiết kế và thi công các sản phẩm tủ bếp nhựa cao cấp chúng tôi luôn tự hào đem đến các giải pháp tối ưu và hữu dụng nhất cho ngôi nhà của Quý khách.





