Mẫu tủ bếp đẹp được làm hoàn toàn bằng nhựa PVC và thiết kế công năng cho căn bếp rộng rãi nhà chú Bảo – Văn Giang, Hưng Yên.

Mẫu tủ bếp đẹp có quầy bar tủ rượu cho căn bếp hiện đại nhà chú Bảo
Hiện trạng căn bếp nhà chú Bảo:
– Căn bếp rộng rãi với không gian mở, kết hợp phong ăn và tiếp giáp phòng khách, có cột tường bên phải
– Nội thất thiết kế theo phong cách hiện đại

Phương án tủ bếp nhà chú Bảo
– Hệ tủ hình chữ G, với thiết kế tủ bếp chữ L , thêm quầy bar và tủ rượu
– Toàn bộ tủ bếp sử dụng tấm nhựa pvc số 1 Việt Nam, với cánh phẳng dày 18mm ưu điểm vượt trội: siêu chịu nước, không ẩm mốc, không sợ mối mọt, không nứt xứ, không cháy … tuổi thọ rất bền.
– Bề mặt cánh phủ sơn men bóng ôt ô kỹ thuật lai 2 màu Nâu – trắng trên cùng 1 cánh hiện đại, tìm hiểu thêm: Tại sao giá tủ bếp nhựa trên thị trường lại khác nhau?
– Mặt bàn bếp: đá nhân tạo thạch anh cao cấp .

Tủ rượu và hệ tủ đồ mặt khoe với phòng khách nhà chú Bảo

Quầy bar với thiết kế đơn giản mặt phòng ăn
Mặt chia công năng tủ đồ bên trong và trên là tủ rượu kính

Mặt chính công năng tủ bếp cũng rất rộng rãi với công năng cực kỳ hiện đại
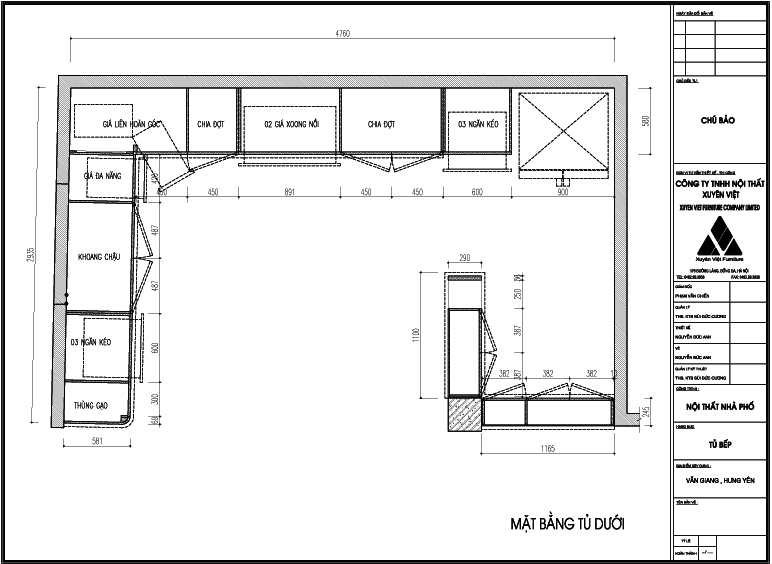
Công năng thiết kế tủ bếp nhà chú Bảo
– Tủ bên chậu: Thùng gạo mặt gương thông minh ngoài cùng bên trái chậu, tiếp theo 3 ngăn kéo đề đồ. Bên phải có giá đa năng để dao thớt gia vị đa năng, phần góc có giá liên hoàn hiện đại.
– Tủ bên bếp nấu: Dưới bếp có 2 giá ngăn kéo xoong nồi, 2 bên các ngăn có kệ để đồ khô.
– Tủ rượu cạnh tủ lạnh kết hợp hệ tủ trên tủ lạnh hiện đại. Lò vi sóng âm tủ ở giữa và phía dưới có thêm 3 ngăn kéo khác.
– Hệ tủ rượu, quầy bar và tủ đồ: Tủ rượu với thiết kế mở dạng kệ, bên dưới tủ đồ tiện dụng, Quầy bar với thiết kế có đình bar và 1 phần bên phải có tủ rượu cạnh kính.

Thiết kế công năng tiện ích cho nhu cầu nhà chú Bảo
Nội Thất Xuyên Việt hơn 20 năm chuyên thiết kế và thi công các sản phẩm tủ bếp nhựa cao cấp chúng tôi luôn tự hào đem đến các giải pháp tối ưu và hữu dụng nhất cho ngôi nhà của Quý khách.







