Tủ Bếp Sơn Men Bóng Ánh Kim – LS 250-351 chính là điểm nhấn sang trọng, kết hợp hoàn hảo giữa thẩm mỹ tinh tế và công năng vượt trội, mang đến giải pháp tối ưu cho không gian bếp hiện đại mà Tủ Bếp Xuyên Việt tâm huyết kiến trúc tạo. Sản phẩm này không chỉ là một hệ thống tủ bếp thông thường mà còn là biểu tượng của phong cách sống đẳng cấp, đáp ứng nhu cầu về một căn bếp bền đẹp theo thời gian.
Tủ Bếp Sơn Men Bóng Ánh Kim – Đẹp Bền Hiện Đại
Với thiết kế sơn men bóng ánh kim và chất liệu cao cấp, hệ tủ bếp sơn men này giải quyết triệt để những lo lắng về độ bền, khả năng chống ẩm và mang lại vẻ đẹp phổi linh, bền bỉ cho trái tim của ngôi nhà.
Hãy cùng khám phá sức hút khó cưỡng của mẫu tủ bếp nhựa cao cấp này, một trong những lựa chọn hoàn hảo cho nội thất thiết bị tiện nghi và sang trọng qua thiết kế tủ bếp mà Cô Vân – Thủ Đức, TP HCM.
Chi tiết bộ tủ bếp sơn men bóng nhà cô Vân
Chào tháng 4 năm 2025 với một làn sóng gió mới cho không gian bếp của bạn, một tuyệt tác được chế tác tỉ tỉ bởi Tủ Bếp Xuyên Việt.

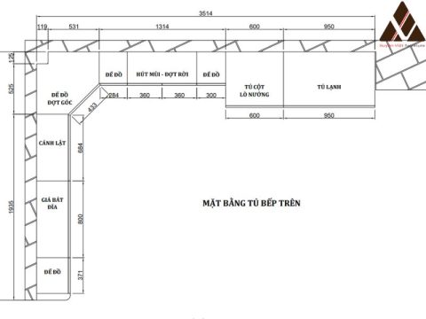
- Kích thước : Tủ trên 1935 x 3514 x S380 x C935 (mm), Tủ dưới D2585 x 3514 x S600 x C840. Ngoài ra còn có tủ rượu được thiết kế đi kèm trên tủ trên.
- Kết cấu tủ : Khung thùng, vách tủ, cánh tủ nhựa dày 18mm, xà đỡ chịu lực dày 36mm, hậu tủ 9mm cực kì chắc chắn
- Thiết kế cánh Boom độc đáo – chỉ có tại Xuyên Việt với độ dày cánh dày 28mm.

Điểm nhấn đặc biệt của sản phẩm chính là lớp sơn men bóng cao cấp kết hợp hiệu ứng ánh kim. Dưới ánh sáng tự nhiên hay ánh đèn, mặt tủ bếp tỏa ra vẻ đẹp sang trọng, huyền ảo, tạo chiều sâu và sự cuốn hút khó giải cho không gian. Màu sắc Xanh ghi pha trắng là sự kết hợp đầy ý tứ, mang đến cảm giác vừa thanh lịch, hiện đại, vừa dễ chịu, thư thái.
Sắc xanh ghi thời thượng, nền hòa quyện cùng sắc trắng tinh khôi phục nên một tổng thể hài hòa, dễ dàng phối hợp với nhiều phong cách nội thất khác nhau, từ tối giản đến sang trọng. Đây không chỉ là màu sắc mà còn là tuyên ngôn về sự tinh tế và gu thẩm mỹ độc đáo.

Thiết kế của Tủ Bếp Sơn Men Bóng Ánh Kim – LS 250-351 được tối ưu hóa về công năng, đảm bảo sự tiện nghi tối đa cho người sử dụng. Từng ngăn kéo, khoang tủ được tính toán kỹ lưỡng, bố trí khoa học, giúp bạn dễ dàng sắp xếp và tìm kiếm đồ dùng nấu nướng. Các đường nét thiết kế mạnh mẽ, dứt khoát nhưng không kém phần mềm mại, tạo nên một tổng thể cân đối và thu hút.
Cô Vân chia sẻ rằng, từ khi lắp đặt Tủ Bếp Sơn Men Bóng Ánh Kim – LS 250-351, không gian bếp của gia đình như được khoác lên mình tấm áo mới, sang trọng và tiện nghi hơn hẳn. Việc nấu nướng và dọn dẹp trở nên nhẹ nhàng, thú vị hơn. Đây chính là niềm vui và động lực để Tủ Bếp Xuyên Việt không ngừng nỗ lực mang đến những sản phẩm chất lượng nhất.

Sản phẩm không chỉ đẹp về hình thức mà còn ẩn chứa bên trong là sự bền bỉ đáng kinh ngạc, nhờ vào việc sử dụng vật liệu cốt lõi tiên tiến và kết cấu vững chắc. Tủ Bếp Xuyên Việt tin rằng, đầu tư vào Tủ Bếp Sơn Men Bóng Ánh Kim – LS 250-351 là bạn đang đầu tư vào giá trị thẩm mỹ, công năng và sự bền vững cho tổ ấm của mình.
Cùng xem video dưới đây để xem chi tiết căn bếp nhà cô Vân nhé!
Chất liệu nhựa đặc PVC và lớp phủ Sơn men bóng ánh kim
Nền tảng tạo nên sự ưu việt của Tủ Bếp Sơn Men Bóng Ánh Kim – LS 250-351 chính là sự kết hợp hoàn hảo giữa vật liệu cốt lõi tiên tiến và lớp phủ bề mặt cao cấp. Tủ Bếp Xuyên Việt luôn đặt tiêu chí chất lượng và độ bền lên hàng đầu, lựa chọn những vật liệu tốt nhất để mang đến sự an tâm tuyệt đối cho khách hàng.
1. Vật Liệu Cốt Lõi – Nhựa PVC Đặc Cao Cấp
Điểm cốt lõi làm nên sự khác biệt và độ bền vượt trội của sản phẩm chính là vật liệu được sử dụng. Chất liệu Tủ bếp được làm từ Tấm nhựa PVC đặc dày 18mm – Nặng 36kg/tấm, bóng láng 2 mặt. Có nhiều ưu điểm vượt trội như : Siêu chịu nước, chống mối mọt, chống cháy lan, thân thiện với môi trường, dễ dàng vệ sinh.
- Siêu chịu nước: Khác biệt hoàn toàn so với gỗ công nghiệp hay gỗ tự nhiên dễ bị trương nở, ẩm mốc khi gặp nước, tấm nhựa PVC đặc có cấu trúc phân tử kín, không thấm nước. Điều này đặc biệt quan trọng trong môi trường bếp, nơi thường xuyên tiếp xúc với hơi ẩm và nước, đảm bảo tủ bếp không bị cong vênh, mục nát, giữ được kết cấu ổn định trong suốt quá trình sử dụng. Đây là giải pháp lý tưởng cho khí hậu nóng ẩm tại Việt Nam.
- Chống mối mọt tuyệt đối: Mối mọt là kẻ thù của nội thất gỗ. Với nhựa PVC đặc, bạn hoàn toàn yên tâm vì vật liệu này không phải là thức ăn của mối mọt hay bất kỳ loại côn trùng nào khác. Bạn sẽ tiết kiệm được chi phí và thời gian cho việc xử lý mối mọt định kỳ.
- Chống cháy lan: An toàn phòng cháy chữa cháy là yếu tố cực kỳ quan trọng. Nhựa PVC đặc không duy trì ngọn lửa, giúp ngăn chặn hoặc làm chậm quá trình lan truyền của đám cháy, tăng thêm thời gian quý báu để xử lý sự cố, bảo vệ an toàn cho gia đình và tài sản. Các tiêu chuẩn an toàn vật liệu xây dựng quốc tế thường xuyên đánh giá cao đặc tính này của PVC.
- Thân thiện với môi trường: Tấm nhựa PVC đặc được sản xuất theo quy trình hiện đại, không chứa các chất độc hại như Formaldehyde (thường có trong gỗ công nghiệp), an toàn cho sức khỏe người sử dụng. Đồng thời, vật liệu này có thể tái chế, góp phần bảo vệ môi trường.
- Dễ dàng vệ sinh: Bề mặt nhựa PVC nhẵn mịn, không bám bẩn, kết hợp cùng lớp sơn men bóng càng làm tăng khả năng chống bám bẩn và dễ lau chùi.

Lớp Phủ Bề Mặt – Sơn Men Bóng Ánh Kim
Đây là lớp “áo giáp” hoàn thiện vẻ đẹp và tăng cường bảo vệ cho tủ bếp. Quá trình sơn men bóng ánh kim tại Tủ Bếp Xuyên Việt là một quy trình phức tạp, đòi hỏi kỹ thuật cao và sự tỉ mỉ:
- Quy trình sơn đa lớp: Bề mặt nhựa PVC được xử lý kỹ lưỡng trước khi sơn nhiều lớp sơn lót và sơn màu. Lớp sơn men bóng ánh kim cuối cùng được phủ lên và xử lý bằng công nghệ hiện đại để đạt độ bóng, độ cứng và hiệu ứng ánh kim hoàn hảo.
- Tăng cường độ cứng và chống trầy xước: Lớp sơn men tạo ra một bề mặt cứng chắc, hạn chế tối đa các vết trầy xước do va chạm thông thường trong quá trình sử dụng.
- Bảo vệ cốt nhựa: Lớp sơn không chỉ tạo thẩm mỹ mà còn là lớp màng bảo vệ cốt nhựa PVC khỏi tác động của môi trường, tia UV, giúp tăng cường tuổi thọ cho sản phẩm.
- Hiệu ứng thẩm mỹ đỉnh cao: Như đã đề cập, hiệu ứng bóng và ánh kim tạo nên vẻ đẹp sang trọng, độc đáo, phản chiếu ánh sáng làm không gian bếp thêm lung linh.

Kết Cấu Vững Chắc Đảm Bảo Độ Bền
Không chỉ chú trọng vật liệu, Tủ Bếp Xuyên Việt còn đặc biệt quan tâm đến kết cấu của sản phẩm: Kết cấu tủ :Khung thùng, vách tủ, cánh tủ nhựa dày 18mm, xà đỡ chịu lực dày 36mm, hậu tủ 9mm cực kì chắc chắn.
- Độ dày tiêu chuẩn: Việc sử dụng tấm nhựa dày 18mm cho toàn bộ khung thùng, vách và cánh tủ đảm bảo sự cứng cáp, ổn định.
- Xà đỡ chịu lực dày 36mm: Các vị trí chịu lực chính như dưới mặt đá, dưới chậu rửa được gia cố bằng hệ thống xà đỡ dày gấp đôi (36mm), đảm bảo khả năng chịu tải nặng, không bị võng hay biến dạng khi đặt các vật nặng lên trên.
- Hậu tủ dày 9mm: Hậu tủ cũng sử dụng nhựa PVC dày 9mm, tăng cường độ ổn định cho toàn bộ khung tủ và bảo vệ tốt hơn cho phần tường phía sau.

Sự kết hợp giữa vật liệu nhựa PVC đặc ưu việt, lớp sơn men bóng ánh kim cao cấp và kết cấu vững chắc tạo nên một Tủ Bếp Sơn Men Bóng Ánh Kim – LS 250-351 không chỉ đẹp mắt mà còn bền bỉ phi thường, xứng đáng là trái tim của ngôi nhà bạn trong nhiều năm tới.
Tại sao khách hàng nên mua sản phẩm tại Tủ Bếp Xuyên Việt
Lựa chọn một bộ tủ bếp là một quyết định quan trọng, ảnh hưởng đến thẩm mỹ, công năng và giá trị lâu dài của ngôi nhà. Giữa rất nhiều lựa chọn trên thị trường, tại sao Tủ Bếp Sơn Men Bóng Ánh Kim – LS 250-351 từ Tủ Bếp Xuyên Việt lại là sự đầu tư xứng đáng và an tâm nhất? Dưới đây là những lý do thuyết phục:
- Với hơn 20 năm kinh nghiệm trong lĩnh vực nội thất Tủ bếp, Xuyên Việt tự hào là một trong những đơn vị tiên phong và uy tín hàng đầu tại Việt Nam, đặc biệt trong ngành tủ bếp nhựa. Chúng tôi không chỉ bán sản phẩm, chúng tôi mang đến giải pháp tối ưu dựa trên sự thấu hiểu sâu sắc về vật liệu, kỹ thuật thi công và nhu cầu thực tế của hàng ngàn khách hàng đã tin tưởng.
- Đội ngũ chuyên gia: Từ đội ngũ tư vấn viên am hiểu sản phẩm, nhà thiết kế sáng tạo đến kỹ thuật viên lành nghề, tất cả đều được đào tạo bài bản, liên tục cập nhật kiến thức và xu hướng mới nhất để mang đến những sản phẩm và dịch vụ hoàn hảo.
- Cam Kết Chất Lượng Sản Phẩm Vượt Trội: Chúng tôi cam kết chỉ sử dụng tấm nhựa PVC đặc loại 1, đảm bảo đúng tiêu chuẩn về độ dày, trọng lượng (Nặng 36kg/tấm), và các đặc tính kỹ thuật như siêu chịu nước, chống mối mọt, chống cháy lan. Lớp sơn men bóng ánh kim được nhập khẩu và thi công theo quy trình nghiêm ngặt, đảm bảo độ bền màu và thẩm mỹ.
- Tư vấn chuyên sâu: Chúng tôi lắng nghe nhu cầu, khảo sát thực tế không gian bếp của bạn để đưa ra những tư vấn phù hợp nhất về kiểu dáng, màu sắc, công năng và ngân sách.
- Thiết kế cá nhân hóa: Mỗi căn bếp là duy nhất. Tủ Bếp Xuyên Việt cung cấp dịch vụ thiết kế 3D miễn phí, giúp bạn hình dung rõ ràng về sản phẩm Tủ Bếp Sơn Men Bóng Ánh Kim – LS 250-351 khi lắp đặt vào không gian thực tế của gia đình, như cách chúng tôi đã làm hài lòng gia đình Cô Vân – Thủ Đức, TP HCM.
- Lắp đặt chuyên nghiệp: Đội ngũ kỹ thuật viên lắp đặt giàu kinh nghiệm, đảm bảo quá trình thi công nhanh chóng, chính xác, sạch sẽ và đúng kỹ thuật.
- Bảo hành dài hạn: Hiểu rằng tủ bếp là một khoản đầu tư dài hạn, Tủ Bếp Xuyên Việt mang đến chính sách Bảo hành 5 năm, bảo trì trọn đời cho sản phẩm. Đây là lời cam kết mạnh mẽ về chất lượng và độ bền của sản phẩm.
Tủ Bếp Sơn Men Bóng Ánh Kim – LS 250-351 không chỉ là một sản phẩm nội thất, mà là hiện thân của sự sang trọng, tiện nghi và đẳng cấp mà bạn xứng đáng sở hữu. Đó là nơi khởi nguồn những bữa ăn ấm cúng, nơi lưu giữ khoảnh khắc sum vầy và là niềm tự hào của mỗi gia chủ. Với độ bền vượt trội từ nhựa PVC đặc, vẻ đẹp lấp lánh từ sơn men bóng ánh kim và sự đảm bảo từ Tủ Bếp Xuyên Việt, đây chính là sự đầu tư thông minh cho tương lai tổ ấm của bạn.
Đừng bỏ lỡ cơ hội biến căn bếp mơ ước thành hiện thực. Hãy để lại thông tin ngay hoặc gọi ngay qua hotline để nhận tư vấn miễn phí từ các chuyên gia của Tủ Bếp Xuyên Việt. Chúng tôi sẽ giúp bạn hiểu rõ hơn về sản phẩm, lên thiết kế 3D phù hợp và giải đáp mọi thắc mắc.
Khám phá thêm về Tủ Bếp Xuyên Việt và hành trình hơn 20 năm kiến tạo không gian bếp hoàn hảo cho hàng ngàn gia đình Việt Nam. Hãy để chúng tôi đồng hành cùng bạn!



















