Mẫu tủ bếp nhựa hiện đại nhà anh Tình – Phố Nối, Hưng Yên
– Căn bếp có diện tích rộng kết hợp phòng ăn và nối liền phòng khách của gia đình.
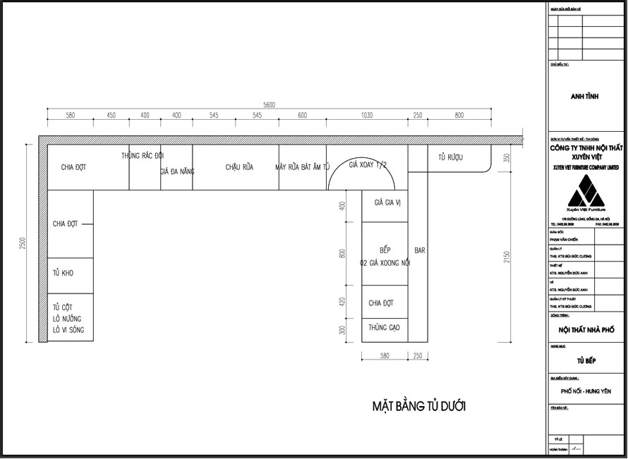
– Tủ bếp thiết kế chữ u có thêm tiện ích quầy bar kết hợp đảo bếp và tủ rượu hiện đại theo phong cách Châu Âu.
– Tủ bếp phối màu đỏ đun trắng trên bề mặt cánh, đá tông màu vàng kem kết hợp kính màu xanh ngọc nhẹ nhàng.

Sau khi khảo sát thực tế tủ bếp Xuyên Việt đã lên phương án cho nhà anh Tình như sau
– Tủ bếp sử dụng tấm nhựa pvc số 1 Việt Nam, với cánh phẳng dày 18mm ưu điểm vượt trội: siêu chịu nước, không ẩm mốc, không sợ mối mọt, không nứt xé, không cháy … tuổi thọ rất bền. Kết cấu đảm bảo chắn chắn, bền đẹp.
– Bề mặt cánh phủ sơn men bóng ô tô, áp dụng kỹ thuật lai 2 màu đỏ đun – trắng trên cùng 1 cánh hiện đại, bề mặt cứng bóng dễ vệ sinh, chống xước rất tốt, không bong tróc, không đổi màu … đang được rất nhiều khách hàng lựa chọn.
– Kính ốp bếp: màu xanh ngọc nhẹ nhàng tôn lên gam màu đỏ đun của tủ bếp,chống ẩm mốc tường, vệ sinh lau chùi dễ dàng hơn.
– Mặt bàn bếp: đá nhân tạo màu vàng thạch anh cao cấp hợp tông màu căn bếp hiện đại, bề mặt cứng bóng chống nứt, chống ngấm nước, vỡi kỹ thuật ghép xử lý “không vết nối” .


Công năng thiết kế tủ bếp nhà anh tình
– Giá bát đĩa 2 khoang sử dụng tay nâng Blum và giá bát đĩa di động nâng hạ.
– Bên trái chậu rửa có thùng rác đôi ngăn kéo và giá dao thớt, gia vị, đũa.
– Máy rửa bát đặt bên phải chậu rửa và đặt âm trong tủ bếp.
– Góc chữ L cạnh bếp có mâm xoay góc 1/2 để xoong nồi ít dùng.
– Bên trái bếp có giá để các chai lọ gia vị nấu nướng và dưới bếp là 2 giá ngăn kéo để xoong nồi ít dùng.
– Thùng để gạo mặt gương được bố trí ngay bên phải của bếp nấu.

Và phương án tủ bếp thiết kế màu đen – trắng cũng rất đẹp, nếu như Quý khách thì Quý khách sẽ chọn phương án nào ạ?

Nội Thất Xuyên Việt gần 20 năm chuyên thiết kế và thi công các sản phẩm tủ bếp nhựa cao cấp chúng tôi luôn tự hào đem đến các giải pháp tối ưu và hữu dụng nhất cho ngôi nhà của Quý khách.






